Pfeil links Vermittelte Immobilie Pfeil rechts

 

 
top of page
El Paso
Titelbild Objekt C-3557

Sehr schöne Kolonialstillvilla mit Baugenehmigung für Umbau/Erweiterung in El Paso

C-3557

Ort

El Paso

Grundfläche

190 m²

Grundstück

772 m²

Höhe über NN

800 m

Zimmer gesamt

5

Wohnzimmer

1

Küche

1

Esszimmer

1

Schlafzimmer

3

Badezimmer

1

Hauswirtschaftsraum

1

Lagerräume

2

Werkstatt

1

Flur

1

Von uns vermittelt
Pfeil rechts Weitere Fotos
Die authentisch Kolonialstilvilla (124 m² Grundfläche) wurde glücklicherweise fast vollständig im Originalzustand erhalten und begeisterte uns durch ihren achsensymmetrischen Grundriss, die nahezu kompletten historischen Bodenfliesen (baldozas hydraulicas) und die hellen, hohen Räume. Sie kann mit recht geringen Mitteln auf einen aktuellen Stand gebracht und so bewohnt werden. Wer es komfortable und moderner möchte könnte auch die vorhandene Baugenehmigung für eine größere Modernisierung nutzen, sich von einigen Wänden verabschieden und dem Haus so zu einem klassischen Wohnambiente verhelfen, dass modernen Ansprüchen an Großzügigkeit, Transparenz und offenen Bereichen gerecht wird. Die auf dem Dach befindliche, ursprüngliche Lichtkuppel könnte wieder geöffnet werden und der Villa damit zu einem licht- und luftdurchfluteten Ambiente verhelfen.
Derzeit ist die Villa in einen opulenten Eingangsbereich mit lediglich durch Holz-Glaselemente abgegrenzten Essbereich dominiert, der das Zentrum des Hauses darstellt. Darüber befand sich die Lichtkuppel, die leider zu einer kleinen Werkstatt umgenutzt, aber mit vergleichsweise einfachen Mitteln wieder ihrer ursprünglichen Verwendung zugeführt werden könnte.
Auf beiden Seiten dieses Eingangsbereichs befinden sich je zwei große Zimmer, am Ende auf der linken Seite ein kleines Zimmer, in das ein Badezimmer eingebaut wurde, auf der rechten Seite zwei weitere kleine Räume, von denen einer als Küche diente.
Hinter dem Haus befindet sich ein Treppenaufgang zur Dachterrasse, die einen sehr schönen Rundumblick in die Berge und zum Atlantik bietet. Unter diesem Treppenaufgang wurden zwei Wirtschaftsräume (9 m² Grundfläche) untergebracht. Daran angrenzend befindet sich eine ehemalige Garage (26 m² Grundfläche) in ruinösem Zustand.
Der rund 500 m² große Garten wartet auf eine liebende Hand und beherbergt noch zwei Geräteschuppen (11 m² + 9 m² Grundfläche) und einen Wassertank (15 m² Grundfläche).
An Renovierungen wirklich notwendig erscheint eine Erneuerung der Elektroinstallation und zumindest Reparatur der Wasserinstallation sowie umfangreiche Malerarbeiten.
Im Kaufpreis enthalten ist die Baugenehmigung für eine umfangreiche Modernisierung des ganzen Hauses inklusiv Grundrissoptimierung, Abriss und Neubau der Garage als SPA-Bereich mit Sauna und kleinem Schwimmbecken, die Verlegung des Eingangs zur Südseite, der Bau von Parkplätzen und eine Umgestaltung des Gartens enthalten, so dass dann eine Villa mit sehr großem Wohn-, Koch, Ess- und Arbeitsbereich, zwei großen Schlafzimmern mit jeweils eigenem Badezimmer und einer verglasten Galerie zum SPA-Bereich entstehen würde.
Die abgebildeten Fotos zeigen zunächst den Ist-Zustand und ab Bild 51 die virtuellen Darstellungen, wie die Villa nach der Modernisierung aussehen könnte.
Das Anwesen ist durch eine gut asphaltierte Nebenstraße, Strom- und Trinkwasseranschluß erschlossen. Ein Telefonkabel liegt, könnte aber auch durch Anschluss an das Glasfasernetz ersetzt werden.
Ausstattung
Dusche
Tageslichtbad
Unmöbliert
Helle Räume
Stellplatz
Dachterrasse
Erschließung/Technik

Öffentliches Stromnetz

Stadtwasser

Zisterne

Lage

Ruhig im zu El Paso gehörigen Ortsteil La Rosa auf ca. 800 müNN. Entfernung zum Stadtzentrum von El Paso mit vielen Schul- und Einkaufsmöglichkeiten ca. 2,5 km, zur nächsten Schule ca. 250 m, zur nächsten, kleinen Einkaufsmöglichkeit ca. 900 m, zum Sandstrand und Marina von Tazacorte ca. 13 km, zum internationalen Flughafen ca. 20 km und zum nächsten AKW ca. 1.660 km.

Ansicht von Nordosten
Ansicht von Nordosten
Eingangsbereich
Eingangsbereich
Eingangsbereich
Eingangsbereich
Eingangsbereich/Esszimmer
Eingangsbereich/Esszimmer
Eingangsbereich/Esszimmer
Eingangsbereich/Esszimmer
Eingangsbereich/Esszimmer
Eingangsbereich/Esszimmer
Zimmer 1
Zimmer 1
Zimmer 1
Zimmer 1
Zimmer 1
Zimmer 1
Zimmer 1
Zimmer 1
Zimmer 2
Zimmer 2
Esszimmer
Esszimmer
Esszimmer
Esszimmer
Zimmer 3
Zimmer 3
Zimmer 3
Zimmer 3
Esszimmer
Esszimmer
Zimmer 4
Zimmer 4
Badezimmer
Badezimmer
Zimmer 4
Zimmer 4
Abstellraum
Abstellraum
Abstellraum
Abstellraum
Küche
Küche
Küche
Küche
Ansicht von Südosten
Ansicht von Südosten
Ansicht von Südosten
Ansicht von Südosten
Westseite mit kleinen Nebengelassen
Westseite mit kleinen Nebengelassen
Nebengelasse, Treppe zur Dachterrasse
Nebengelasse, Treppe zur Dachterrasse
Ansicht von Südwesten
Ansicht von Südwesten
Ansicht von Süden
Ansicht von Süden
Dachterrasse mit schönem Rundumblick
Dachterrasse mit schönem Rundumblick
Dachterrasse mit schönem Rundumblick
Dachterrasse mit schönem Rundumblick
Dachterrasse mit schönem Rundumblick
Dachterrasse mit schönem Rundumblick
Dachterrasse mit schönem Rundumblick
Dachterrasse mit schönem Rundumblick
Dachterrasse mit schönem Rundumblick
Dachterrasse mit schönem Rundumblick
Dachterrasse mit schönem Rundumblick
Dachterrasse mit schönem Rundumblick
Dachterrasse mit schönem Rundumblick
Dachterrasse mit schönem Rundumblick
Dachterrasse mit schönem Rundumblick
Dachterrasse mit schönem Rundumblick
Dachterrasse mit schönem Rundumblick
Dachterrasse mit schönem Rundumblick
Dachterrasse, Nebengelasse
Dachterrasse, Nebengelasse
Dachterrasse mit schönem Rundumblick
Dachterrasse mit schönem Rundumblick
Separates Lager/Werkstatt
Separates Lager/Werkstatt
Separates Lager/Werkstatt
Separates Lager/Werkstatt
Visualisierung Baugenehmigung
Visualisierung Baugenehmigung
Visualisierung Baugenehmigung
Visualisierung Baugenehmigung
Visualisierung Baugenehmigung
Visualisierung Baugenehmigung
Visualisierung Baugenehmigung
Visualisierung Baugenehmigung
Visualisierung Baugenehmigung
Visualisierung Baugenehmigung
Visualisierung Baugenehmigung
Visualisierung Baugenehmigung
Visualisierung Baugenehmigung
Visualisierung Baugenehmigung
Visualisierung Baugenehmigung
Visualisierung Baugenehmigung
Visualisierung Baugenehmigung
Visualisierung Baugenehmigung
Visualisierung Baugenehmigung
Visualisierung Baugenehmigung
Visualisierung Baugenehmigung
Visualisierung Baugenehmigung
Visualisierung Baugenehmigung
Visualisierung Baugenehmigung
Visualisierung Baugenehmigung
Visualisierung Baugenehmigung
Visualisierung Baugenehmigung
Visualisierung Baugenehmigung
Alternative Fensterteilung im Jugendstil
Alternative Fensterteilung im Jugendstil
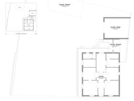
Aktueller Grundriss
Aktueller Grundriss
Aktuelle Fassadenansichten
Aktuelle Fassadenansichten
Baugenehmigung Gegenüberstellung alt (gelb)/neu(rosa)
Baugenehmigung Gegenüberstellung alt (gelb)/neu(rosa)
✖     
Die Flächenangaben unterscheiden sich in Spanien erheblich von den deutschen Begriffen. Um Ihnen den Vergleich zu erleichtern, geben wir so viele Flächenangaben, wie sie uns zur Verfügung gestellt werden. Da es sich bei den verwendeten Begriffen um Übersetzungen handelt, nachfolgende Definition, wie die Flächenangaben auf unserer
Website verwendet werden:

Grundfläche oder (schweizerisch) Bruttogeschossfläche:


Außenmaß des Gebäudes. Bei mehrgeschossigen Gebäuden ist die Grundfläche die Summe der Aussenflächen aller Stockwerke.

Nutzfläche:

Grundfläche ohne Mauerstärken plus überdachte Terrassen zur Hälfte gerechnet

Wohnfläche:

Innenflächen des Gebäudes ohne Verkehrsflächen (z.B. Flure und Treppen) und Funktionsflächen (z.B. Heizungsraum, Technikraum)

✖     

Stadtwasser

Stadtwasser ist das einzige offizielle Trinkwasser der Insel. Es wird von den Gemeinden gemäß der EU-Trinkwasserverordnung aufbereitet, je nach Wetter unterschiedlich stark gechlort und mit Druck über Wasseruhr geliefert. Die Abrechnung erfolgt nach Verbrauch, es kostet (je nach Gemeinde) ca. 4 €/Monat Grundgebühr inklusive der ersten 15 m³, was für einen 2-3 Personenhaushalt ausreichend ist. Es ist nicht erlaubt, mit Stadtwasser umfangreiche Gartenbewässerung vorzunehmen, der Verbrauch sollte 150 Liter pro Tag und Person nicht überschreiten. Für Großverbraucher gibt es Staffelpreise: Je höher der Verbrauch, desto teurer wird der Preis pro m³. Er liegt (über den inbegriffenen 15 m³ pro Monat) bei 0,50 € bis 2,0 € pro Kubikmeter.

Weitere Infos zum Thema Wasserversorgung

✖     

SAT-TV

Die Immobilie ist mit einer Fernseh-Satteliten-Empfangsanlage ausgestattet. Sie können also über Astra rund 900 europäische Fernsehsender empfangen, natürlich auch ARD und ZDF (sogar legal gebührenfrei!) und alle deutschen Privatsender, die meisten auch in HD.
✖     

Zisterne

Eine Zisterne ist ein Wasserbehälter, in dem hier meist das sogenannte Aktienwasser gesammelt wird. Da dieses Wasser mit einer bestimmten Menge pro Minute drucklos auf der Finca ankommt, sammelt man im Winter (wenn weniger Wasser für die Gartenbewässerung benötigt wird) das überschüssige Wasser in diesem Tank, so dass man im Sommer, wenn mehr benötigt wird, einen Vorrat hat. Auf einigen Fincas wird auch zusätzlich das anfallende Regenwasser darin gespeichert.
Weitere Infos zum Thema Wasserversorgung
✖     

Öffentliches Stromnetz

Diese Finca ist an das öffentliche Stromnetz angeschlossen, was auf La Palma nicht immer selbstverständlich ist. Einige Anwesen produzieren ihren Strom auch mittels alternativer Techniken selbst und speichern ihn in Batterien. Da wir ja über sehr viel Sonne und in manchen Gegenden auch reichlich Wind verfügen, eine sehr umweltschonende Art der Energieversorgung.
✖     

Festnetzanschluss über Funk

Bei dieser Finca ist das Telefon Festnetz über das Mobilnetz angebunden. Das bedeutet, dass keine Telefonleitungen den Ausblick verschandeln und Sie eine normale Festnetz-Telefonnummer (beginnend mit +34 922 …) bekommen. Die Gebühren werden wie bei einem normalen Festnetz-Anschluss abgerechnet.
✖     

Internetanschluss

Mittlerweile sind fast alle Anwesen auf la Palma an das Internet angeschlossen, der Ausbau des Netzes erfolgt mit großer Geschwindigkeit. Derzeit sind sehr viele unterschiedliche Techniken verfügbar, so dass eine flächendeckende Anbindung möglich ist. Technische Lösungen sind:
  • Glasfaserkabel - Geschwindigkeiten bis 300 Mbit möglich. Das Netz wird derzeit ausgebaut und ist z.B. in Los Llanos verfügbar, in Puntagorda ab Januar 2019 …
  • Kupferkabel über das Telefonnetz - Geschwindigkeit bis 10 Mbit möglich, je nach Entfernung zum nächsten Knotenpunkt
  • Funk über Mobilnetz - fast auf der ganzen Insel verfügbar - Geschwindigkeiten derzeit bis 10 Mbit möglich
  • Richtfunk - möglich, wenn eine Sichtverbindung zum nächsten Funkmast besteht. Geschwindigkeiten bis 12 Mbit möglich, zu recht interessanten Preisen
  • Satelliten-Anbindung - 100% Abdeckung der gesamten Insel, Geschwindigkeiten bis 22MBit möglich, relativ teuer, aber immerhin, es geht auch in den entlegensten Gebieten.
✖     

Klimaanlage mit Heizung

Klimaanlagen braucht man hier zum kühlen eher selten, auch im Hochsommer ist unser Wetter eher moderat, Temperaturen über 30°C sind auch im Hochsommer die Ausnahme. Wenn allerdings im August der 'Calima', ein heißer Wüstenwind aus der Sahara sich zu uns verirrt, dann kann es auch mal über 35°C werden und nach einigen Tagen ist man dann dankbar für eine Klimaanlage. Die Anlagen arbeiten überwiegend nach dem Konstruktionsprinzip der Luft-Luft-Wärmepumpe, sind also recht energieeffizient (im Kühlbetrieb i.d.R. mit einem Wirkungsgrad von 1:3, im Heizbetrieb von 1:4), so dass sich auch die Stromkosten und der CO2-Ausstoß in Grenzen halten, zumal die Anlagen selten gebraucht werden und die auszugleichenden Temperaturunterschiede nicht sehr groß sind. Insofern werden diese Anlagen auch oft und gerne zum Heizen verwendet: Da sie nur selten und meist sehr kurz laufen müssen, dafür aber schnell reagieren, für die meisten Häuser eine ideale Heizung.
✖     

Aktienwasser

Das sogenannte Aktienwasser wird für die Gartenbewässerung verwendet. Es heißt so, weil Sie im juristischen Sinne kein Wasser kaufen, sondern einen Firmenanteil an einer der Wassergenossenschaften. Auf Ihre 'Wasseraktie' erhalten Sie die Dividende in Naturalien ausgeschüttet, in Form des Wassers. Je nach Gesellschaft sind die Wassermengen und die Preise für diese Anteilsscheine sehr unterschiedlich, man kann diese Aktien auch mieten oder vermieten. Ein umfangreiches Thema, zu dem wir Sie gerne beraten.
Weitere Infos zum Thema Wasserversorgung
✖     
Das Brauchwasser für Bad und Küche wird bei diesem Objekt besonders umweltfreundlich mit einer solarthermischen Anlage erzeugt, d.h. es wird in der Regel lediglich Sonnenenergie für die Brauchwassererwärmung verwendet. Lediglich bei mehreren Tagen ohne Sonne (was bei uns selten vorkommt) kann es notwendig sein, mit zusätzlicher Fremdenergie (elektrisch oder mit Flaschengas) zugeheizt werden. Dies erfolgt in der Regel automatisch, die Energieeinsparung beträgt nach unserer Erfahrung rund 90%.
Angel Immobilien SL Logo Angel Immobilien SL
Plaza de España n° 2
38760 Los Llanos de Aridane

Tel. +34 922 40 16 24
Mobil +34 647 87 28 94
Mail [email protected]