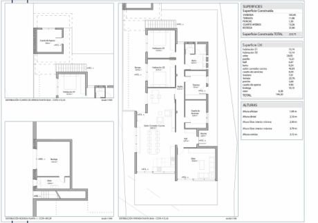
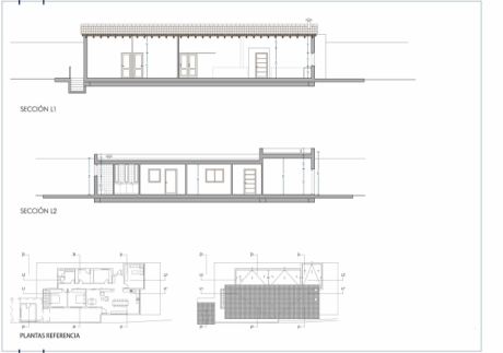
Das sehr große und gut gelegene Grundstück (4533 m²) besteht aus einem Baufenster von 1.480 m² und einem landwirtschaftlichen Teil von 3.050 m². Im Baufenster wurde ein Wohnhaus von 165 m² Grundfläche zuzüglich Terrassen und Nebengebäude (Bodega und Werkstatt oder ähnliches) genehmigt. Es beinhaltet eine großzügige Wohnküche mit fantastischem Meerblick von ca. 44 m², 2 Schlafzimmer von je 13 m², ein Badezimmer, einen Wirtschaftsraum, einen Lagerraum und ein weiteres Wohnzimmer von ca. 20 m².
Das Grundstück ist über eine schmale und gut asphaltierte Nebenstraße erschlossen und liegt sehr ruhig. Durch die niedrige Meereshöhe von 415 müNN liegt es in einer sehr ausgeglichenen Klimazone, so dass ein gut gebautes Haus praktisch nie beheizt und nur äußerst selten gekühlt werden muss.
Das Grundstück ist in 2 bis 3 Terrassen unterteilt und innerhalb der Terrassen sehr eben.
Das Wohnhaus darf sowohl aus Dauerwohnsitz, als auch teilweise oder ganz zur touristischen Vermietung genutzt werden. Weitere touristische Gebäude wären genehmigungsfähig.
Die Baugenehmigung ist im Kaufpreis enthalten.























