Espaņol

       Deutsch
top of page

  

  
Very tasteful and spacious villa in an excellent area of La Punta    
Titelbild Objekt C-2300

C-2300
Town Tijarafe
living surface 140 mē
building area 166 mē
surface of realty 14204 mē
altitude above sealevel 500 m
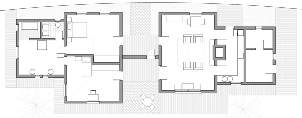
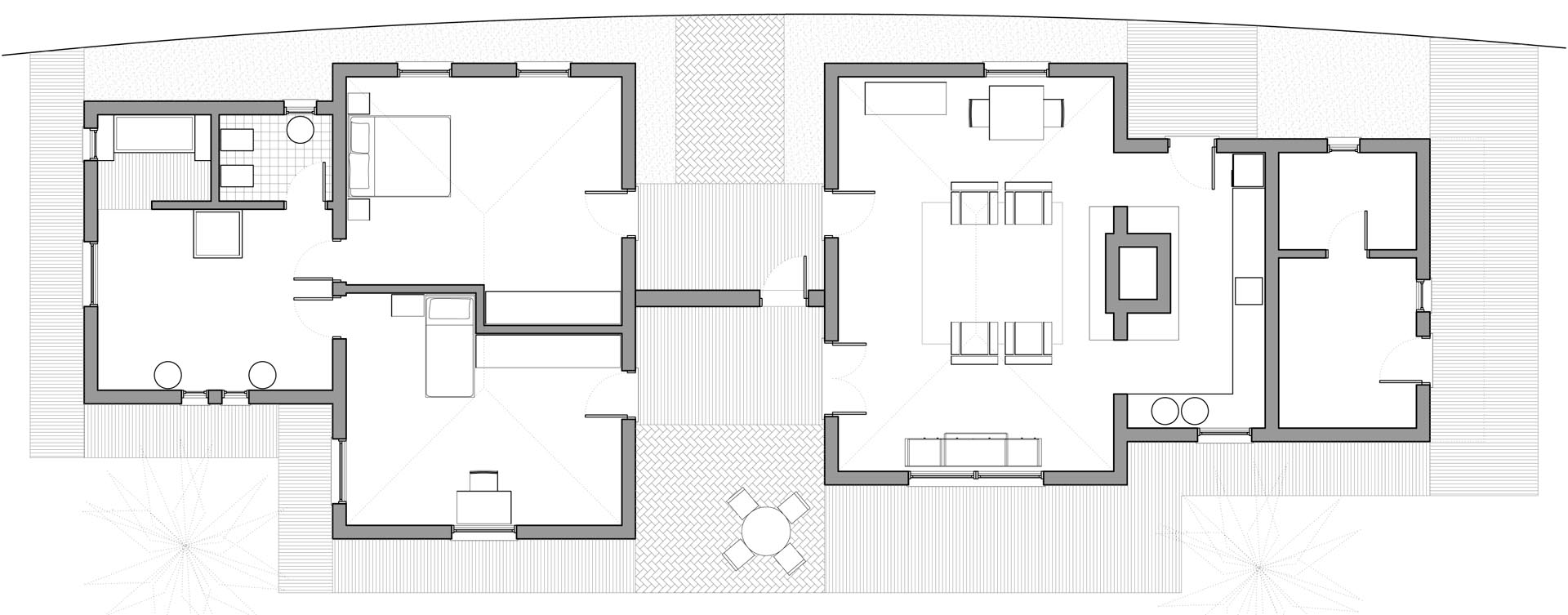
living-room 1
kitchen 1
bedrooms 2
bathrooms 2
utility room 1
engeneering room 1
Brokered by us

What is so appealing to the life on La Palma? The contiguousness to the nature, the balanced climate and the life in fresh and pleasantly tempered air are certainly some decisive reasons. Such motives are reflected in the architecture of this exceptionally tasteful and well thought out designed villa. The centers of this house are two roofed and by a classical stone wall separated terraces. They connect the living- with the sleeping quarters, so that all of the rooms have access by only one door to the wind and weather-protected outdoor area, to enjoy the wonderful view of the Atlantic Ocean and the lovely scenery of Tijarafe. One terrace faces the East, so you can have breakfast either at the first rays of the sun outside. The other
terrace is located western and allows a clear view of the sunset over the width of the ocean. In this way you can enjoy the sun in the morning and evening, before the intensive rays of the midday sun in summer, but you are protected on both terraces under the roof. If it is to warm, you can use the terraces contrary and enjoy all day the shady sites.
The very large and high built (3,40 m eaves height, ridge height of 6 m) living-room with a Canary roof framework joins the terraces to the south. The classic hip roof form provides a natural temperature in the rooms, because the warm air gathers under the pediment, while the temperature remains pleasant in the residential area. The living room is dominated optically by a fire-place covered with natural stones that finds its artistic counterpart in it’s with wood and protected glass door built-in cabinets on the opposite wall. On both sides of the fireplace are the passages to the semi-open kitchen. This arrangement allows also within the residential area the choice of a seat in the east or west window, so you can enjoy your meals in the house in the early or evening sun with sea view. At the same time you have very short distances to the kitchen.
Just as the entire house, the use of wood and Mediterranean colors, a thoughtful, step-up lighting design accents exudes extraordinary comfort, the kitchen is also not only a work around but a comfortable room. A large, combined gas and electric stove with ceramic glass cooktop and generously dimensioned stainless steel extractor hood is located on the front page.
Oppositely is a classic brick wood-burning oven for pizza, bread and cakes; at the longitudinal site is the wet bar with work top. Here attaches the generous laundry room on that offers plenty of room for supplies and the washing machine.
On the west side is the bathroom of the living area (or guest bathroom) with walk shower in discreet natural stone look.
Northern follows the central terraces and a large bedroom or study and the master bedroom. Both rooms are equipped with hand-crafted built-in cupboard with vented doors for good smelling laundry. These rooms have plenty of space to use both of it as bedrooms; each with a working area.
 
Another highlight of this property is the attached, light-filled master bath: It finds its optical center in the free-standing, circular temple shower with massage jets. Two designer sink, a bathtub located in a niche with sea view and a separate
toilet room with bidet leave nothing to desires for a SPA.
 
The plot with approx. 14.000 mē is very large, so the magnificent sea view and very quiet location and a great distance to the nearest neighbors will remain at all times.
Many fruits have been planted, including kiwi, khaki, avocado, almond, various sorts of plum, nectarine, wine, mango, fig, and papaya; partly already carrying.
 
It is also possible to construct a further building as a separate guest house on the lot or to extend the existing building up to a total surface of ??300 mē.
 
The entire building services correspond to high equipment. The house is appointed with underfloor heating in all rooms by gas heating. The east terrace is equipped with underfloor heating as well, so it can be expanded as a heated conservatory. A central vacuum cleaner provides unattended, low noise and low dust-free cleaning in the whole house. The water for domestic use is heated with solar energy, on cloudy days the gas boiler switches automatically. The drinking water is
treated with a reverse osmosis plant on mineral quality.
 
The new building took place in 2007 and only exclusively and high quality materials was used. The walls are made of Termoacilla (comparable to the German Poroton brick), all doors, lattice windows and built-in wardrobes are made of ecologically certified Solomon Paduk plantation wood and are mostly provided with insect screens. The visible ceiling beams are made of mulberry wood. The property is barrier-free and suitable for allergy sufferers.

Location
Very quiet in an almost secluded location of ??La Punta. Distance to the bus stop 650 m, to the next shops 2,5 km, to the sandy beach of Tazacorte 12 km, to Los Llanos with all schools and shopping facilities 15 km, to the international airport 41 km and to the nearest nuclear power plant about 1665 km.
Furnishings
bathtube
shower with massage nozzels
daylight bathroom
partly furnished
luced rooms
reverse osmosis sistem
Technical services
electric grid
water shares
internet access
SAT-TV
feature fireplace
solar warm water system
central vacuum cleaner
gas floor heating

line
  Arrow left Back  
  Logo Angel Immobilien SL   Angel Immobilien SL
Plaza de Espaņa n° 2
38760 Los Llanos de Aridane
Tel. +34 922 40 16 24 / +34 647 87 28 94 / [email protected]