Español

       English
top of page

  
Blick nach Südwesten

Blick nach Südwesten

Blick nach Westen

Fassade des genehmigten Projekts

Ansichten des genehmigten Projekts

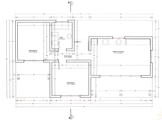
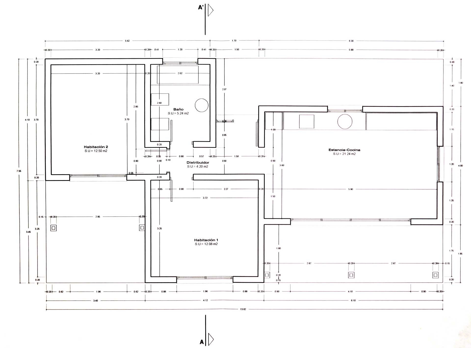
Grundriss des genehmigten Projekts

  
Sehr schön gelegenes Baugrundstück mit Baugenehmigung für ein Ferienhaus
Die Flächenangaben unterscheiden sich in Spanien erheblich von den deutschen Begriffen. Um Ihnen den Vergleich zu erleichtern, geben wir so viele Flächenangaben, wie sie uns zur Verfügung gestellt werden. Da es sich bei den verwendeten Begriffen um Übersetzungen handelt, nachfolgende Definition, wie die Flächenangaben auf unserer Website verwendet werden:

Grundfläche: Außenmaß des Gebäudes. Bei mehrgeschossigen Gebäuden ist die Grundfläche die Summe der Grundflächen aller Stockwerke.
Nutzfläche: Grundfläche ohne Mauerstärken plus überdachte Terrassen zur Hälfte gerechnet
Wohnfläche: Innenflächen des Gebäudes ohne Verkehrsflächen (z.B. Flure und Treppen) und Funktionsflächen (z.B. Heizungsraum, Technikraum)
   
Titelbild Objekt T-2520

T-2520
Ort Tijarafe
Grundfläche 66 m²
Grundstück 3012 m²
Höhe über NN 640 m
Zimmer gesamt 2
Wohnküche 1
Schlafzimmer 2
Badezimmer 1
Von uns vermittelt

Das Grundstück befindet sich im Ortsteil Aguatavar der Gemeinde Tijarafe mit herrlichem Meerblick. Durch seine ruhige Lage an einem Hang ist der Blick absolut unverbaubar.  Die Region ist klimatisch sehr angenehm und eignet sich sehr gut für die Anlage eines Obst- und Gemüsegartens.
Die Baugenehmigung ist für ein Haus von 66 m² Grundfläche mit einer Wohnküche, zwei Schlafzimmern und einem Bad erteilt, ein Erwerber könnte innerhalb zwei Wochen mit dem Bau beginnen. Der Kaufpreis beinhaltet die bisher bezahlten Architektenkosten für die Entwicklung des baureifen Projekts und die bezahlten Kosten der Baugenehmigung.

Lage
Auf der sonnigen Westseite La Palmas mit herrlichem Meerblick. Entfernung zur nächsten Bademöglichkeit ca. 2 km, nach Tijarafe mit allen Einkaufsmöglichkeiten und Schule 4 km, zum Sandstrand von Tazacorte 20 km, zum internationalen Flughafen 55 km und zum nächsten AKW ca. 1.665 km.
Ausstattung
Baugenehmigung
Erschließung/Technik

Blick nach Südwesten
Blick nach Südwesten

Blick nach Südwesten
Blick nach Südwesten

Blick nach Westen
Blick nach Westen

Fassade des genehmigten Projekts
Fassade des genehmigten Projekts

Ansichten des genehmigten Projekts
Ansichten des genehmigten Projekts

Grundriss des genehmigten Projekts
Grundriss des genehmigten Projekts
line
  Pfeil zurück Zurück  
  Logo Angel Immobilien SL   Angel Immobilien SL
Plaza de España n° 2
38760 Los Llanos de Aridane
Tel. +34 922 40 16 24 / +34 647 87 28 94 / [email protected]